Proyectos

Selección de Proyectos

Aquí podrás ojear algunos de nuestros proyectos, de los cuales nos sentimos orgullosos de haber realizado siempre cumpliendo nuestro objetivo de profesionalidad y eficacia.

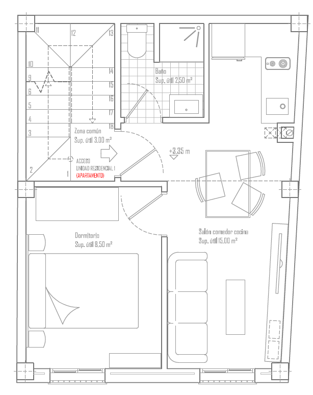
PROMOCIÓN DE CONSTRUCCIÓN NUEVA DE 2 APARTAMENTOS + BAJO ADAPTADO PARA MINUSVÁLIDOS

Ubicación: Priego de Córdoba, España
Tipo de Proyecto: Construcción nueva de 2 apartamentos + bajo adaptado para minusválidos.
Descripción:
En este proyecto nos hemos encargado de la demolición de una vivienda tradicional para la construcción nueva de tres apartamentos con un diseño moderno y funcional. Se ha realizado una redistribución inteligente de los espacios para maximizar el confort y la habitabilidad, optimizando tanto áreas sociales como privadas. Además, se incorporarán acabados de alta calidad, sistemas de iluminación natural y soluciones energéticamente eficientes.
Diseño Personalizado: Adaptación integral a las necesidades y gustos del cliente.
Optimización de Espacios: Redefinición de áreas para mejorar la funcionalidad y la circulación.
Alta Calidad en Acabados: Materiales y detalles seleccionados para ofrecer durabilidad y estilo.
Eficiencia Energética: Implementación de soluciones modernas que garantizan un uso responsable y sostenible de la energía.
Resultados:
El resultado final serán tres apartamentos que conjugan tradición y modernidad, ofreciendo un ambiente acogedor, estéticamente atractivo y altamente funcional.

MANTENIMIENTO VIAL

Conservamos y mejoramos las condiciones de las carreteras y vías de transporte, incluyendo tareas como la reparación de baches, el reemplazo de señalización, la limpieza de drenajes, el repintado de marcas viales y la rehabilitación de pavimentos. Nuestro objetivo es garantizar la seguridad y comodidad de los usuarios, prolongar la vida útil de la infraestructura y optimizar el tránsito vehicular.

CERRAMIENTOS

Brindamos soluciones integrales en cerramientos perimetrales, diseñadas para garantizar la seguridad y delimitación de espacios residenciales, comerciales e industriales.

ARQUETAS

Mantenimiento y reparación de arquetas, bocahombres.